Glenmont Metrocentre

Glenmont Metrocentre's developer, Buchanan Partners, wants to share their plans for their mixed-used project.
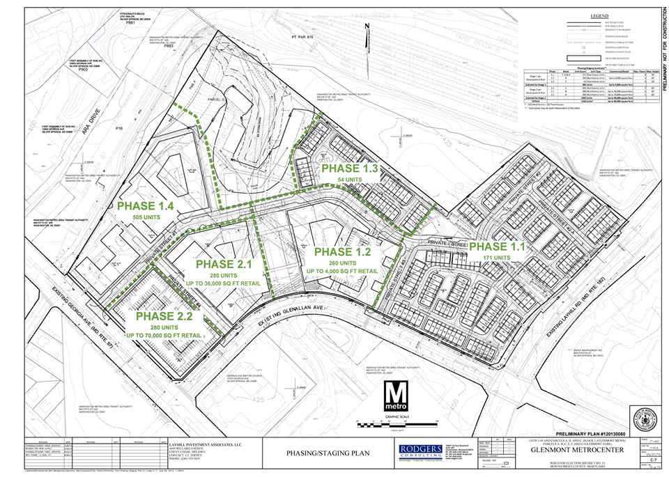
Glenmont Metrocentre is located on Glenallen Avenue, between Layhill Road and Georgia Avenue, across the street from Glenmont Metro station.
The developer selected Winchester to build the first sets townhomes. Winchester Homes has sold roughly half of its townhomes so far.
MI Homes has broken ground on another set of townhomes, next to the Winchester area. MI Homes' townhomes will be larger than Winchester's. And there may be up to 4,000 square feet of retail,. (Think coffee shop, dry cleaners, or something of a similar size.)
Rental apartments will be built next. The apartments will be marketed as luxury apartments. The apartments will have a swimming pool and a common lounge area. The first building will probably be four stories, and the other buildings may be larger. The first building should be completed by Summer 2020. There is additional retail planned here, including a large space intended to be leased to a grocery store, although the developer has not signed a contract with a grocer yet.
The rental apartments will include some moderately priced dwelling units. Buchanan Partners has decided to build a higher percentage of moderately priced dwelling units than Montgomery County requires. While the Montgomery County allows the developer to install very basic fixtures and counter tops for these moderately priced dwelling units, Buchanan Partners has decided to install the same fixtures and counter tops in these units as it will in the other apartment units, which is a very nice thing to do.
Buchanan Partners bought the former Privacy World apartment buildings. Some of those units were in great disrepair, and Buchanan Partners is currently renovating them and leasing them under the new name of Auden Place. Ultimately though, those apartment buildings will be replaced by new rental apartment buildings.
Buchanan Partners has developed other properties in the DC metro area, including in Germantown, in Old Town Alexandria, and in Prince George's County.
If you have questions, you may contact Jimmy Roembke, Buchanan Partners LLC, j.roembke@buchananpartners.com



Consider supporting the Glenmont Exchange with $10 for annual dues for an individual. Mail to the address below or bring to any scheduled meeting. Glenmont Exchange is a 501(c)(4) nonprofit organization. The IRS does not consider dues payments to be a tax-deductible charitable contribution, but the Glenmont Exchange would certainly be grateful for your support.
Glenmont Exchange